
【稲沢市の土地】建築プラン クレバリーホーム様

稲沢市土地 注文住宅プラン集
稲沢市の不動産売買専門店 ハウスドゥ 155号稲沢(株)不動産トータルサポートです。
稲沢市で土地をお探しの方に向けて、注文住宅の建築プランをご紹介します!
是非参考にしてください!!
今回ご協力頂いたのは、クレバリーホーム蟹江店様!(ありがとうございます。)
クレバリーホームの家の特徴を私なりに纏めてみました!
①タイル外壁と陶器瓦を標準で採用しており、美しい外観が長持ちし、メンテナンス費用が抑えられます。
②プレミアム・ハイブリッド構法という独自の構造技術で、地震に強く、外壁の損傷も防げます。
③自由設計が基本で、動線や収納にこだわった間取りを作ることができます。
④予算やライフスタイルに合わせた規格商品も充実しており、平屋や3階建てなどの建物タイプも選べます。
⑤最長30年保証を完備しており、安心して住める家を提供しています。
総タイル張りの外観と地震に強い独自の工法が印象深いハウスメーカーさんです!!
クレバリーホームの家の魅力はまだまだあるかと思いますのでご興味がある方は、とっても素敵な営業担当者さんをご紹介します!
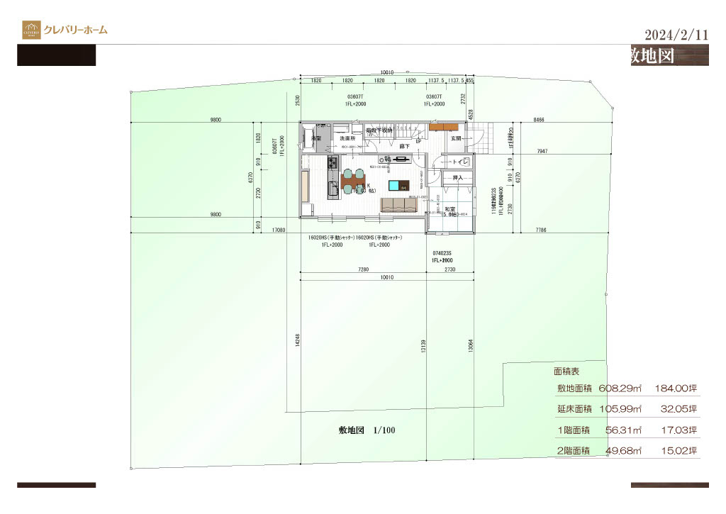
では!お待ちかねの建物プランです!
4LDKの全室が南に面したプランを作成して頂けました!
気になる!?建物価格等はお問い合わせを頂いた方にお教えします!




↓↓稲沢市の不動産購入は不動産トータルサポートにお任せください!!
↓動画で解説します!おうちノウハウ講座!是非、ご覧ください!!
商号 ハウスドゥ 155号稲沢(株式会社不動産トータルサポート)
代表者名 代表取締役 渡邉 友浩
所在地 〒490-1313 愛知県稲沢市平和町横池砂田288
電話番号 0567-69-5665
FAX 0567-69-5532
定休日 毎週 水曜日
営業時間 10:00~18:00
事業内容 土地、中古住宅、新築住宅、中古マンションの売買仲介
土地、中古住宅、中古マンションの買取




